Harbour View Lot With Building Permit
This magnificent 1200 square meter corner lot is located on the south-western hillside above the Port of Philipsburg. From here you have a wonderful view over the bay, the harbour, the Great Salt Pond and the Dutch Capital.
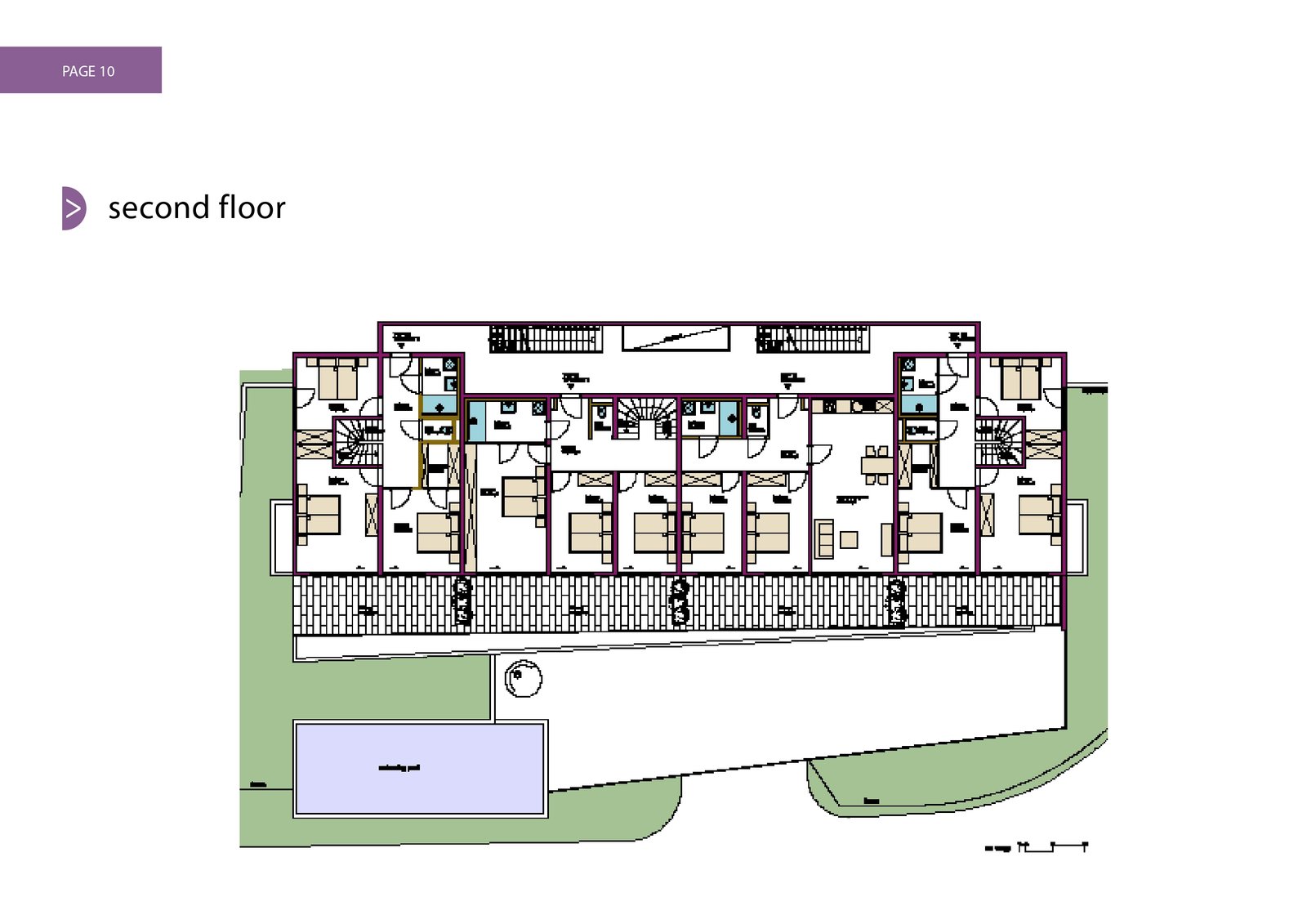
This lot also comes with a building permit for a 13 unit apartment complex.
- The building has a total surface area of 682.65 square meters.
- Every apartment has its own private outside area.
- The two-story penthouses have exclusive roof terraces to enjoy the impressive view.
- A convenient underground parking area for tenants.
- The modern architecture of this building reflects the traditional building technique of Sint Maarten and integrates itself perfectly into the landscape.
Contact Sacha today for more information!
Call or Whatsapp: +1 721 520-2064
Details
Island
:
Sint Maarten (Dutch side)
Communities
:
Point Blanche
Property Type
:
Vacant land
Purpose
:
Buy
Price
:
$550,000
Status
:
Available
Address
:
Sparrow Road 7, Harbour View, Upper Princess Quarter
Property ID
:
15132
Internal Structure
Lot Size
:
1200 m2
Features
Features
Ocean View
Hillside Views































